項目名稱:精致生活不負時光|駿乘星都匯公寓
項目地址:中國.莆田
項目設計:福建萊恩裝飾工程設計有限公司
項目軟裝:福建萊恩裝飾工程設計有限公司
主創(chuàng)設計:鄭永春
空間攝影:陳榮坤
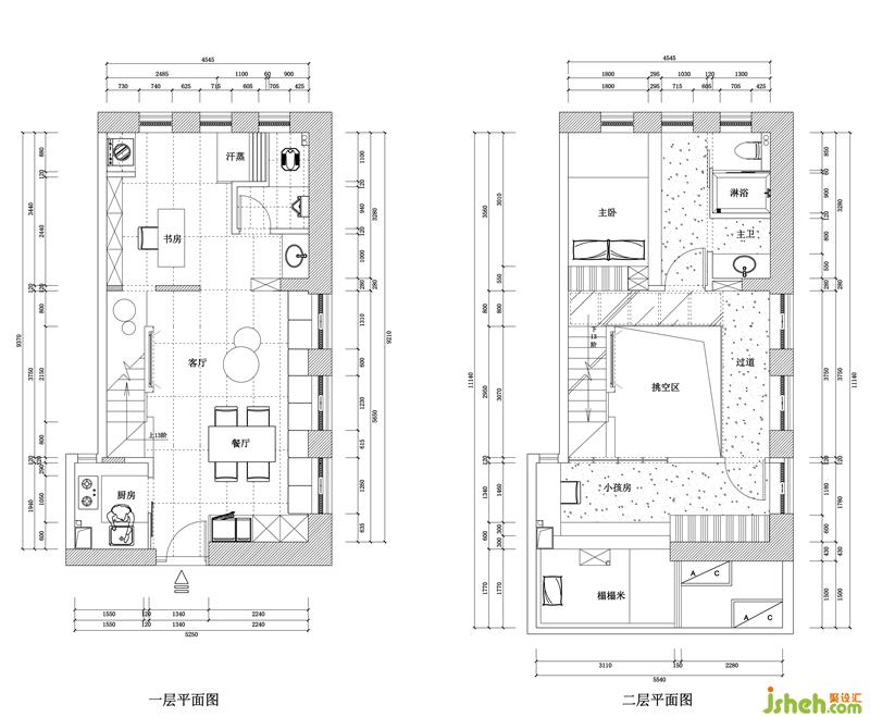
建筑面積:64㎡
項目簡介|Project Profile
駿乘星都匯公寓位于福建莆田涵江商業(yè)區(qū)附近,樓盤以商住兩用的公寓為主,本案位于2號樓18層,面積約64㎡,雙面采光。本案的業(yè)主是一對年輕的企業(yè)高管,熱愛旅行、對待生活有著自己獨特的理解和追求、不妥協(xié)不將就。
客廳大面積挑空和玻璃棧道的應用起到了拓寬了視覺維度,裝修設計讓空間顯得更加流動開放及富有層次,通頂?shù)难b飾畫取材自凡高的畫作,充滿激情的金色筆觸仿佛就像餐桌上的花束,藍色的星空下一個人一本書讓空間充滿了無盡的遐想……
餐廳就餐時,特別訂制的樓梯裝飾射燈光線照在花束上,不僅烘托出溫暖的氣氛,更是勾起熱愛旅游的業(yè)主無限美好回憶:一線天、陡峭的上山臺階… 嵌入式的蒸烤箱可以解鎖更多的美食誘惑,冰箱也是男業(yè)主精心挑選的,超薄極窄可以做到無縫對接餐邊柜。










掃描二維碼關(guān)注我們的微信