

▼藍卡區(qū)/VIP7


入口處的臨時打卡區(qū),更是以基本模塊的重疊交錯,使其不依靠墻面和天花,獨立成型。
The temporary photo area at the entrance is overlapped and staggered by basic modules,which makes it independent of the wall and ceiling.
▼打卡區(qū)/Photo Spot

層疊成幻,光炫成謎,這是我們構筑的平行時空酒吧裝修設計。
Layers form illusions,dazzling into mystery.This is the parallel space-time we build.
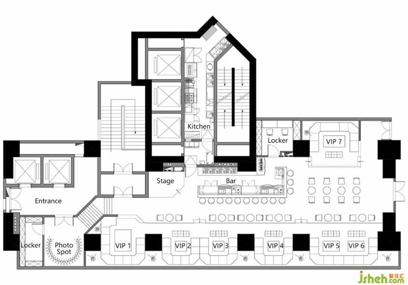
▼設計平面/Plan
更多酒吧裝修設計請關注聚設匯裝修平臺: