山石元素的大幅藝術作品寓意深刻,極具感召力,構筑如同美術館一般的微妙空間。
藝術氛圍與窗外流動的自然完美相融,在靜謐中凝練思考,品、味、格皆可得到升華。
格間書吧陳列架之上是書卷與藝術擺件,以空靈清雋的建筑空間匹配城市雅仕身份。
在此,你可以有暫時的停歇。上海售樓處設計在繁忙的城市生活中,照見心靈,完成一次與自己的對話……

簡約大氣的空間梵境
不需復雜構筑
自然與真實便是天然雕飾
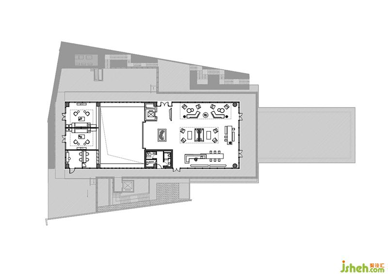
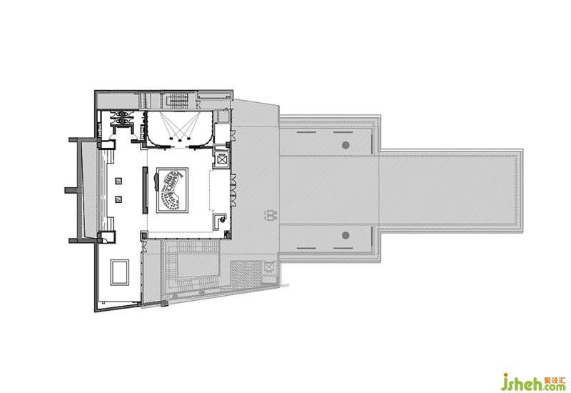
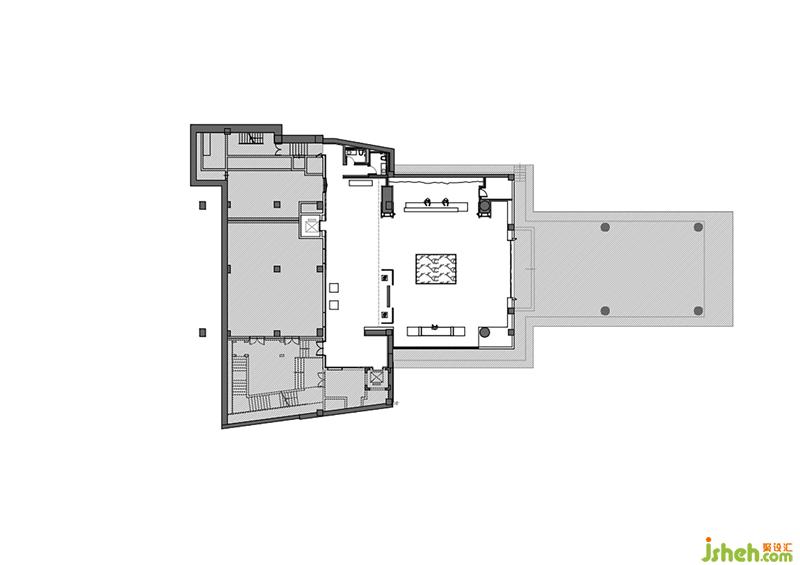
DESIGN PLAN
平面圖
△ 一層平面圖
△ 二層平面圖
△ 三層平面圖
更多上海售樓處設計請關注聚設匯裝修平臺: