設計公司:武漢美構設計顧問有限公司
項目面積:805m2
項目造價:700萬
項目地址:湖北 武漢
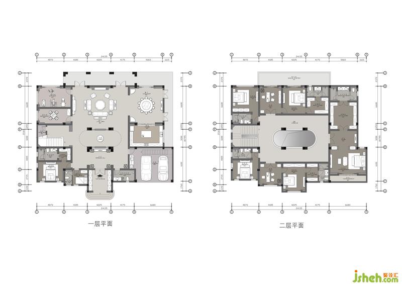
本案位于武漢湯遜湖畔,面積近千平方米,平面格局呈近乎嚴謹的軸線關系,業(yè)主希望擁有一個地道西式的宅子,而非市面泛濫的“偽歐”、“簡歐”,對于自幼在漢口老租界長大的設計師,這似乎不是問題。設計師為這座宅子設計了一個令人驚艷的中庭,中庭四周的護墻板采用木皮手工鑲嵌拼貼工藝,色調到位、尺寸精準,是設計師在自己的工坊親自為業(yè)主打造,貴氣而不浮夸,整個中庭面積不大,到玻璃天棚卻有著近18米的垂直高度,使之成為整棟房子的“精神堡壘”、生活場景的中心。

裝修公司





裝修公司