父母房
—
Parents' room
衛(wèi)生間1
—
Toilet1
主臥
—
Master bedroom

臥室色調(diào)與主色調(diào)一致,木色淺色間錯使用。家裝設計以柜體一色的木飾面作為床頭背景墻的底色,既舒展了空間的視覺效果,又突出了臥室的功能性,顯得柔暖舒適。家裝設計
Bedroom tone and main tone consistent, wood color light color between the wrong use. The wood veneer of the cabinet body is used as the background color of the bedside background wall, which not only stretches the visual effect of the space, but also highlights the functionality of the bedroom, making it soft, warm and comfortable.
衛(wèi)生間2
—
Toilet2
衛(wèi)生間是整個家居中空間最小、使用率高的區(qū)域。家裝設計采用主體白色亮面瓷磚搭配,增強采光效果,提升空間舒適感。
Toilet is the smallest space and high utilization area in the whole household. The main body of the white bright tile collocation, enhance the lighting effect, enhance the comfort of the space.
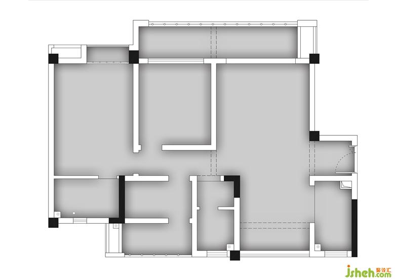
原始結構圖&平面設計圖
—
House type&Plane design

更多家裝設計請關注聚設匯裝修平臺:
掃描二維碼關注我們的微信