項目地點:桂林滟瀾山
項目設計:廣西杰特裝飾工程有限公司
項目總造價:23W
項目面積:140平米
清晨,鬧鐘響了,起床,刷牙,洗臉,換上一件喜歡的外套,搭配黑色的磨砂皮鞋,像黎明起身的戰(zhàn)士,走出家門,告訴自己:學會愛上這個兵荒馬亂的世界......每個人都是自己世界的創(chuàng)造者,這個世界的背后有父母、孩子、伴侶,正因為他們,你希望為這個世界創(chuàng)造出更多更美好的東西



主臥-裝修設計



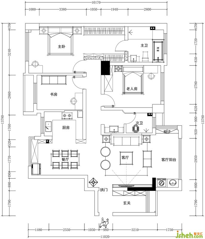
平面結(jié)構(gòu) -裝修設計
更多裝修設計請關注
掃描二維碼關注我們的微信