在這里,以空間為背景,時間為線索,房子的主人透過生活的點滴講述扣人心弦的故事。領地瀾山裝修設計以梳妝臺+儲蓄的組合柜體為基點,主臥排布出一道洄游動線,設計師將屋主所需的所有功能都融合其中。






次衛(wèi)與生活陽臺:
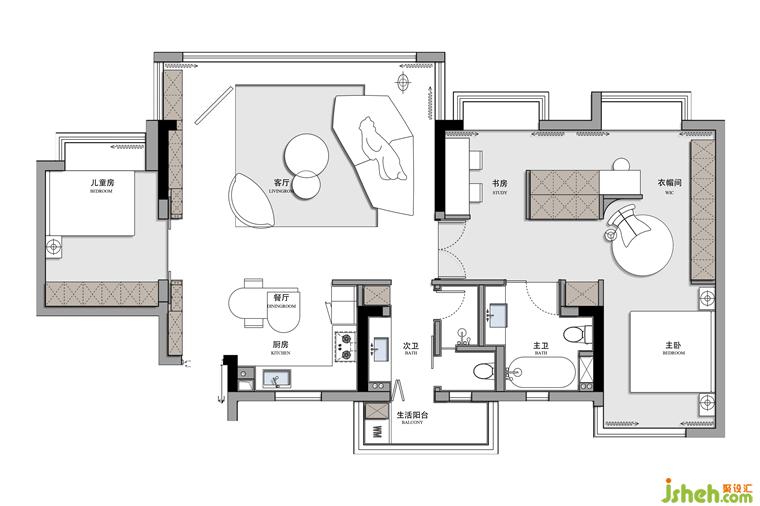
次衛(wèi)原本的空間狹小,屋主在使用生活陽臺時會經(jīng)過次衛(wèi),使用不便。
領地瀾山裝修設計師在走廊與其他房間,劃分了部分區(qū)域。將次衛(wèi)設計為三分離衛(wèi)生間,從而達到盥洗室、淋浴房、馬桶間、生活陽臺,活動互不影響的狀態(tài)。

更多領地瀾山裝修設計請關注聚設匯裝修平臺: