【設計團隊】拾光悠然設計
【團隊介紹】拾光悠然成立于2015年,實用主義者。我們致力于以實用性為主導的去風格化設計,專注于挖掘提升空間價值。
【案例地址】四川,成都
【案例面積】80㎡
【案例類型】毛坯房
【案例戶型】2室2廳2衛(wèi)
【案例費用】26w
【品牌支持】 印象精品瓷磚 · 感物地板 · 良造定制柜 · V派櫥柜
作為一套學區(qū)房,首要考慮的是圍繞著孩子的學習和課外活動,屋主家的小朋友明年即將要開啟小學生活。
屋主們在孩子未到成都讀書之前基本上都不在成都居住,所以這套案子是以全案托管(EPC)的方式去裝修。在整個過程中,從銜接主材、到設計施工落地、在到軟裝銜接,基本都由我們來完成的。
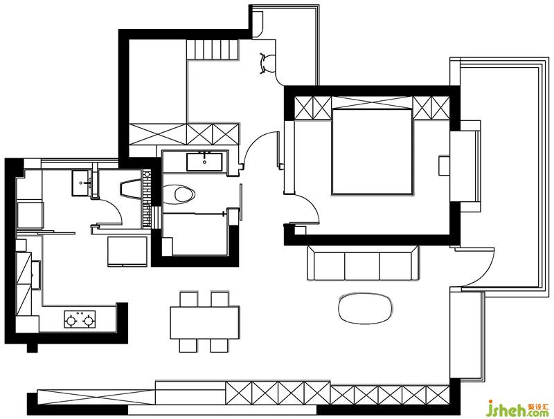
平面布局圖
● 原始戶型分析 1. 生活陽臺較大;客餐廳是單面采光;衛(wèi)生間尺寸較為緊湊。
● 屋主需求 1. 主要為孩子上學所購置的二手房,所以居住人口較多,3個大人+1個小朋友。
● 屋主需求 2. 對收納空間要求較高,喜歡淺色,自然,干凈的元素。
改造后
玄關及廚房
為了保證空間的干凈,整個公共區(qū)域僅用入戶延伸至飄窗臺的墻面做了一組大小不一的收納柜,保證收納合理性。一組換鞋凳+穿衣鏡的搭配,適當?shù)狞c綴玄關,為家人的外出和歸來做好最后一道準備。

開放式廚房空間,將原生活陽臺納入廚房后,不僅增加采光,還讓餐廳與廚房看起來更通透與寬敞。在這里巧妙的借用了一小部分的生活陽臺,打造了出與主衛(wèi)相鄰的衛(wèi)生間,同時移動原生活陽臺與原主衛(wèi)隔斷后擴大了主衛(wèi)區(qū)域。

餐廳區(qū)增加西廚功能,屋主們比較喜歡吃零食,所以一組簡約置物架就顯得尤為重要,這個區(qū)域也補充廚房收納空間的不足。
客廳通過定制柜解決收納需求,大面積的留白,利用橡木的溫暖點綴空間,白灰的空間不失溫馨。