

主臥也用最高效的動線安排,進門就是一字型步入式衣帽間.第三個楓木盒子位于主臥。 木質的大地臺床能模糊上下床的界限,也讓使用者能更加放松。
The master bedroom is also designed with the most efficient moving line. The door is a straight walk-in cloakroom. The third maple box is located in the master bedroom. The wooden platform bed can blur the boundaries of getting on and off the bed, and also allows users to relax more.
▼榻榻米房間

榻榻米房間整面的收納延續(xù)書桌關系做了一個置物凹口的視覺打破,再利用鏡面強化使感受上有了一個更深的延伸上海裝修設計。除了必要的盥洗與更衣。全屋使用的裝飾性鏡面元素原則上都是遠遠低于或高于人的日常視線。
The cabinet on the entire surface of the tatami room continues as a desk, creating a visual break of the recess, and then using the mirror to strengthen the visual experience to have a deeper extension. In addition to the necessary washing and changing clothes, the decorative mirrors used throughout the house are lower or higher than people's daily sight.
▼廚房

▼衛(wèi)生間

晴天時大玻璃窗外的政法校園視野開闊,綠蔭蔥蔥。
On sunny days, the campus outside the glass windows has a wide view and lush green shades.
沒有附庸風雅,沒有凌雜米鹽,窗外是森林般的華政校園,窗內是屬于兩位老師的充滿理性的,書香詩意的小木屋。
There is no arty, no miscellaneous rice and salt, outside the window is a forest-like campus, inside the window is a rational, scholarly and poetic cabin belonging to the two teachers.
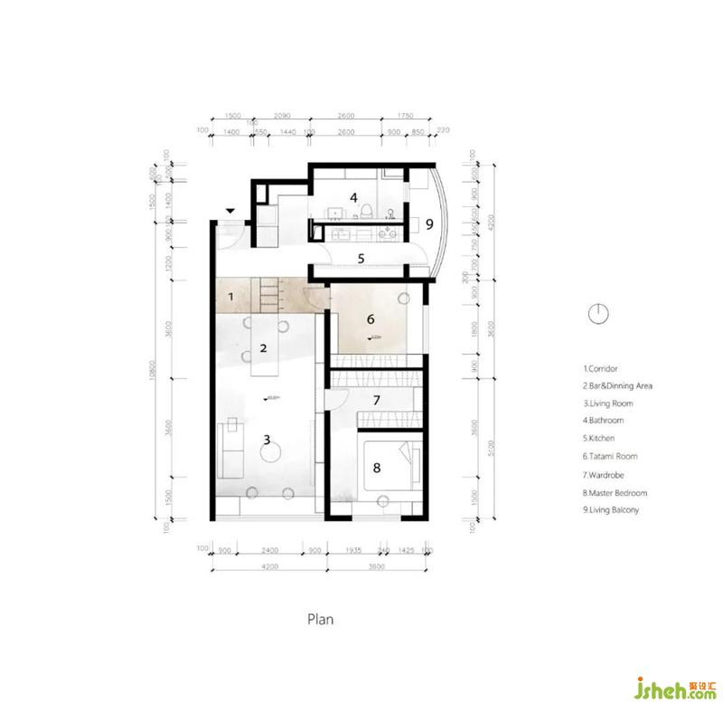
▼改造后平面圖
Plane plan after modification
更多上海裝修設計請關注聚設匯裝修平臺: