設計機構| 百木室內設計機構
項目性質| 住宅公寓
項目地址 | 潮州 · 海博熙泰三期
項目面積|192 m2
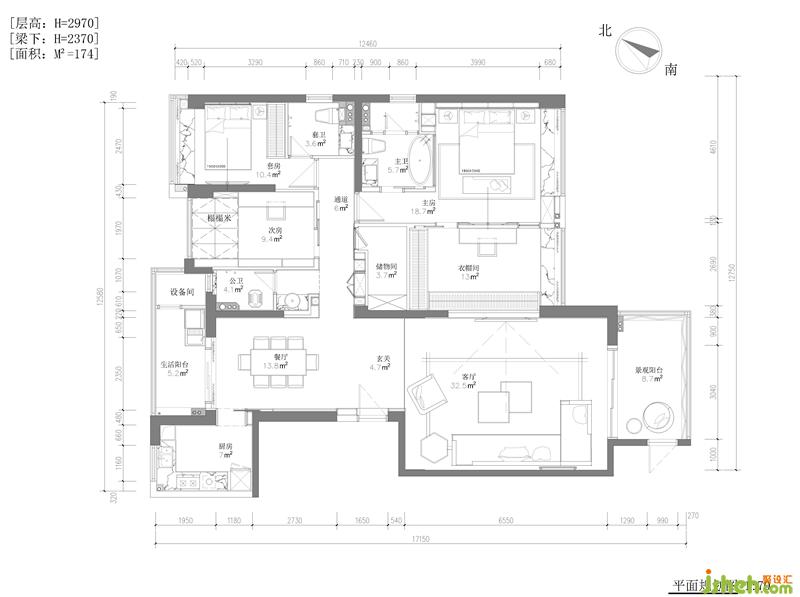
平面圖

過道設計利用木的切割、線條燈的設計讓客廳和餐廳做了一個合理的分割,充滿現代感和穿越感,里應外合,營造出線條的美感;營造出來的空間序列,視線的通透、封閉、半通透也在這個過程中被精心的安排;進入這里,會有不同的空間感受。
本案中,室內設計師采用灰色為主色調,沒有多余繁瑣的設計,而是利用開放式設計,利用簡單的線條,灰色調的大理石電視背景墻,地板為淺灰色的大理石瓷磚使空間一眼望去干凈利落,帶來視野的空闊感。在燈光方面利用藏燈而沒有繁瑣的吊燈,使得空間更加通透。室內設計師在軟裝方面搭配幾何設計,淡淡黃色的點綴,視覺效果強烈,使空間個性鮮明。





