項目名稱:廈門萊昂公館
項目地址:廈門翔安
設計面積:約80平方米
完工時間:2019年1月
工程總造價:約20萬
設計指導:洪約瑟
設計師:廖波
參與設計:楊國輝
攝影:洪約瑟
裝飾材料:大理石、多層實木地板、多樂士乳膠漆、波特曼實木定制、玻璃、布藝軟包
潔具:科勒
櫥柜:波特曼
設計說明:
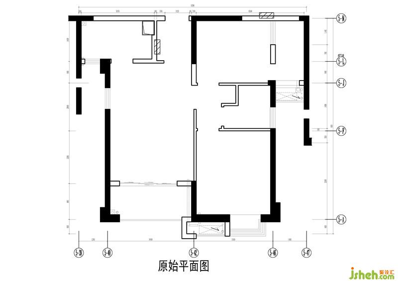
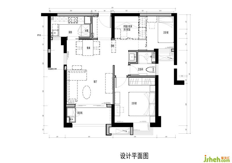
本案位于廈門翔安新區(qū),這是一個三口之家兼顧二孩為受用群體的剛需房。
由于是精裝修樣板房,在設計的時候不僅要考慮展示效果,更要考慮大批量裝修成本及不同業(yè)主實際使用功能滿足和風格迥異的愛好。所以設計師選擇了高級灰的暖色調硬裝風格,軟裝方面灰色系為主,加以點綴暖色調配飾,讓空間感覺沒有那么沉悶無味。加上柔和的燈光營造出整個空間飽含簡約現代氣息,完美地展現了主人追求的低調奢華又不乏時尚生活品質。

深圳裝修公司

深圳裝修公司


深圳裝修公司
