地址 | 廣州番禺亞運城
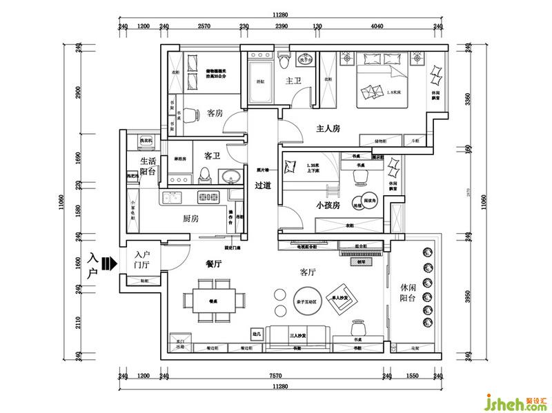
戶型 | 三房兩廳
面積 | 121平方米
風格 | 北歐風格
設計公司 | 胭脂設計事務所
北歐風的狂熱刮起
當白色遇見木色
當藍色碰撞黃色
便成了最美麗的意外......
“簡約時尚北歐風成了現代大城市年輕人追求的風格。”
本案詮釋了案主對于原木北歐風的期待與向往。為了滿足小戶型而家庭成員多的需求,室內設計師把整體空間設計成以收納為主,實現儲物空間的最大化。
▼平面方案設計 | Floor plan
▼人戶玄關
脫去一身疲憊,從忙碌的工作空間轉變回到舒適的私人空間,僅一扇門的距離,純色的亞光烤漆木鞋柜號召回家的呼應,一張一弛,滿滿幸福感......
▼餐廳


原木餐桌上擺放一束綠意,嬉戲于方寸之間,簡單而清新,那一抹黃色的餐椅,讓身處其間的可愛人兒感受熱情與溫暖,這才是生活應有的樣子。
▼客廳


餐廳與客廳的設計,室內設計師打破空間與空間之間的界限,完美的把餐廳和客廳融為一體,爸爸在客廳陪兒子看小豬佩奇,媽媽穿梭在廚房和餐廳之間,一出門便能看到彼此,這種心照不宣的默契,給愛帶來更多的回憶。
▼廚房

餐廳與廚房之間,室內設計師采用L型透明玻璃推拉門,提升了視覺的延伸性。