項目信息
項目名稱:魚棠
項目地址:中國河北石家莊
設計面積:800㎡
竣工時間:2020.11.1
業(yè)主單位:光明漁港餐飲集團
設計公司:叁上叁空間設計
創(chuàng)意總監(jiān):霍慶濤
執(zhí)行總監(jiān):何秀瑩
施工團隊:金蝸牛裝飾
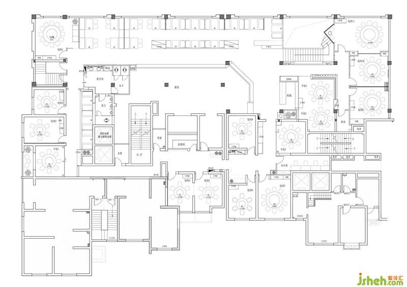
平面圖
“將中國傳統(tǒng)造園的手法運用到餐廳設計中去,形成獨特的游歷動線和空間感受!” ——叁上叁空間設計創(chuàng)意總監(jiān)-霍慶濤


魚棠是河北餐飲龍頭企業(yè)光明漁港在新的餐飲大環(huán)境下的一次創(chuàng)新,也是餐飲大店社區(qū)化的一次嘗試,除了價格更加親民以外,出品也更加聚焦,對環(huán)境的要求也更加時尚和前衛(wèi)。




我們結(jié)合魚棠的品牌文化及出品需求,對空間的塑造做了一次大膽的創(chuàng)新和嘗試。




掃描二維碼關(guān)注我們的微信