偏愛它圓潤優(yōu)美的弧線,形狀對稱、修長,有垂直拉伸之感,深圳現代設計象牙白配上簡約拱形,每一扇都是通往其他空間的儀式感!


深圳現代設計運用原木元素和綠植的加持,床品的選配既呼應空間基調,讓每個角落視點都有所互動,經典造型吊燈,賦予空間現代時尚感,色彩低調,紋理簡單,溫度與質感總是相似的,最是天然色,模樣最純粹。

清爽而通透,空間設計似有千萬種表達,卻都相互襯托、相互契合。
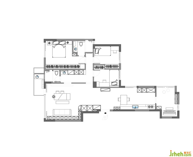
原始結構 / Primitive structure
1、玄關軟燈膜設計、以及無主燈,無踢腳線設計;
2、客餐廚一體化設計,陽臺打造獨立洗手臺;
3、拱形門串聯(lián)零碎空間,家政區(qū)功能合并集中;
4、主臥木格柵柜體與隱形門,滿足收納及功能區(qū)的使用;
5、音樂房設計,滿足孩子的日常學習需求。
平面設計圖 / Floor Plan
更多深圳現代設計請關注