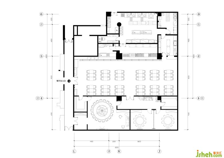
員工餐廳整體呈矩形,就餐區(qū)域中將餐桌以陣列的形式排布,協(xié)調一致、邊界清晰,線形吊燈貫穿始終,延續(xù)辦公區(qū)設計手法的同時,增加空間縱深感。原木色餐桌、明快跳躍的餐椅、繽紛的色彩,在有限的交往中讓自由的思想互相碰撞,同時營造井然有序的用餐空間。辦公室設計

▼設計細部 Design details
▼功能分析圖 Functional analysis diagram
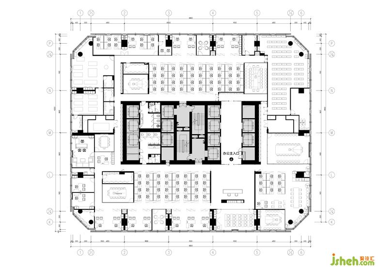
▼辦公區(qū)平面圖 Office Plan
▼餐廳平面圖 Canteen Plan
辦公室設計,更多室內設計師資訊請關注聚設匯裝修平臺: